Entregue

Paraíso
Tropical

  • Cascavel - PR
  • 300m²

diferenciais

Um projeto que
nasce grande, assim
como seu sonho

Descubra o paraíso em um bairro nobre, estrategicamente localizado no futuro de Cascavel.

Aproveite ambientes desenvolvidos com exclusividade para você viver bem!

Calçadas em paver

Lotes entregues gramados

Iluminação pública em LED

Alameda Tropical

Parque infantil

Quadra de basquete streetball

Quadra de areia

Pista de caminhada

Pet Park

Academia ao ar livre

Ciclovia

Praça Julio Miotto

Acesso à BR 467

galeria

Plantas

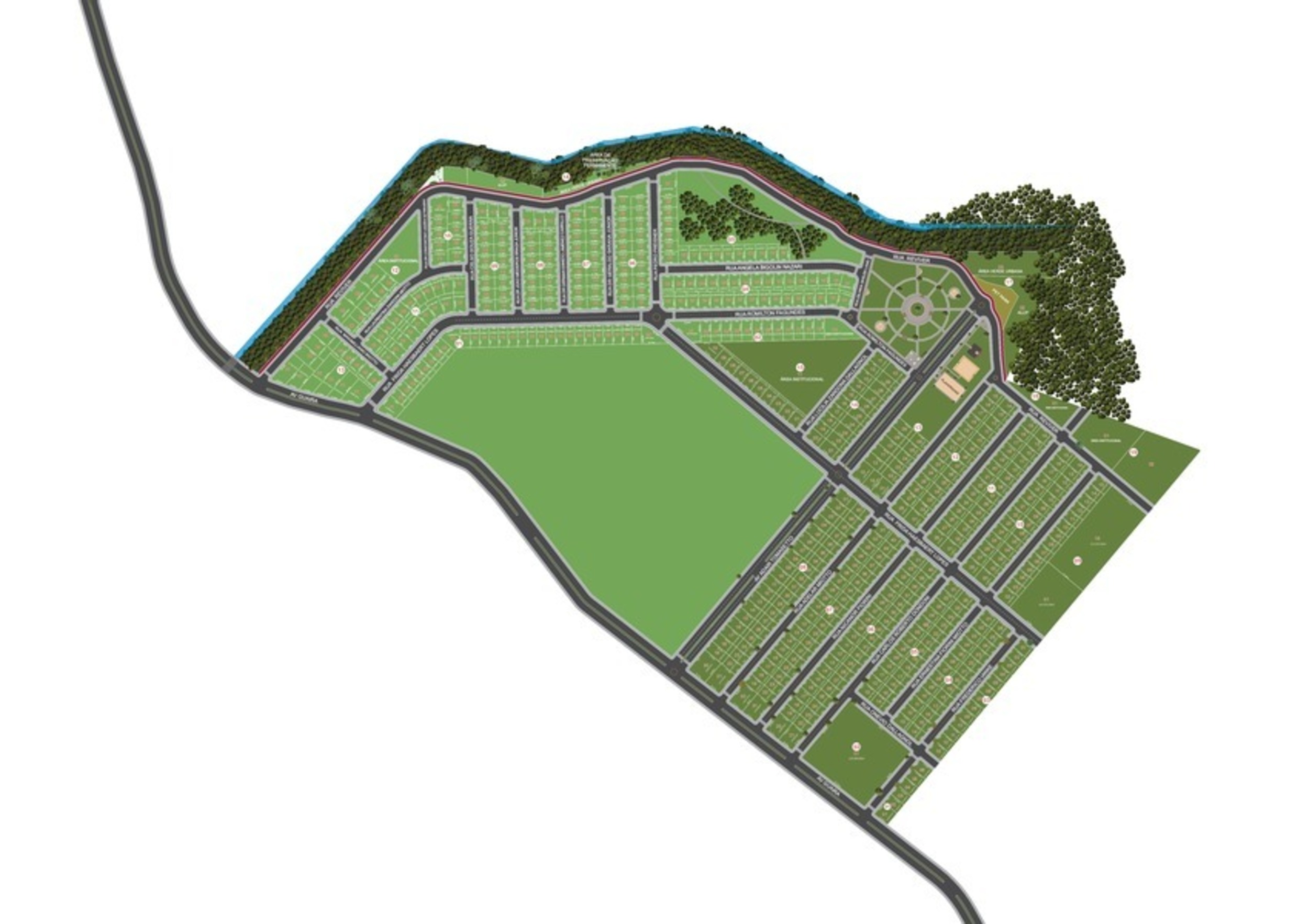
Loteamento

Loteamento

Ficha

O condomínio ideal para viver com sofisticação.

Calçadas em paver

Lotes entregues gramados

Iluminação pública em LED

Alameda Tropical

Parque infantil

Quadra de basquete streetball

Quadra de areia

Pista de caminhada

Pet Park

Academia ao ar livre

Ciclovia

Praça Julio Miotto

Acesso à BR 467


evolução das obras

0%
Obras concluídas

Conclusão Geral 100%

localização

Viva acimado comum

Localização privilegiada oferecendo excelente mobilidade diária, estando localizado no Bairro Tropical. Além disso, o bairro é reconhecido por sua segurança e tranquilidade, proporcionando um ambiente ideal para famílias que buscam um espaço protegido e de fácil acesso às principais vias da região.

Av. Guaíra

Cascavel - PR

Contato

O primeiro passo para seu sonho
começa aqui

Preencha o formulário ao lado e logo nossa equipe entrará em contato!

Whatsapp Telefone